0
Skip to Content
3312 Lowell St NW, Washington, DC
Property Details
Video
Photos
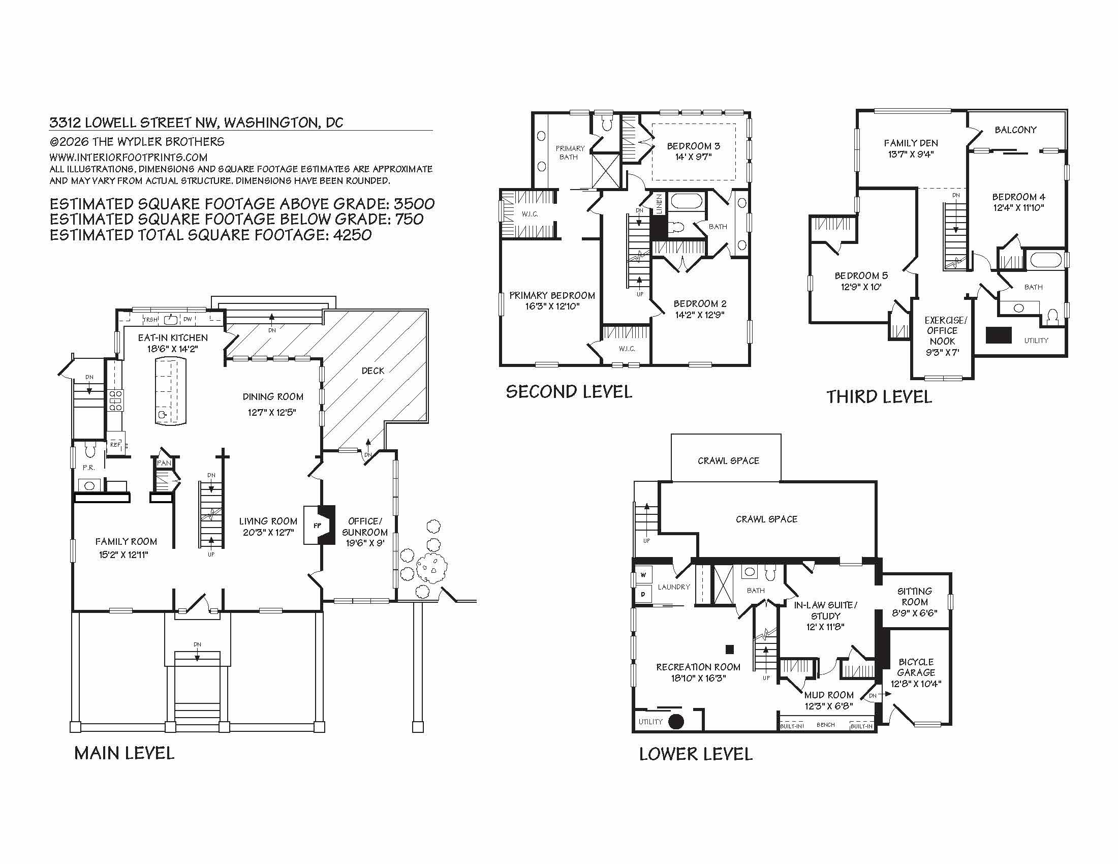
Floor Plans
Contact
3312 Lowell St NW, Washington, DC
Property Details
Video
Photos
Floor Plans
Contact
Property Details
Video
Photos
Floor Plans
Contact

Hans Wydler

Wydler Brothers of Compass

hans@wydlerbrothers.com

(301) 523-6313‬

wydlerbrothers.com